自建房与四合院(4)——北京四合院的布置格局(篇2)

上一篇文章咱们分享了“一进院落、二进院落、三进院落”这三种常见的四合院的基本格局,今天我们就继续介绍剩下的几种基本格局。4、四进院落。四进院落是三进院落沿纵深方向的进一步扩展,...

上一篇文章咱们分享了“一进院落、二进院落 、三进院落 ”这三种常见的四合院的基本格局 ,今天我们就继续介绍剩下的几种基本格局 。

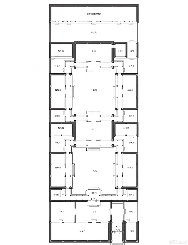
4 、四进院落 。四进院落是三进院落沿纵深方向的进一步扩展 ,它已经属于大型的居住宅院了。一般做法是,在三进院后面加一排后罩房。这样的四进院子,中轴线上从南至北依次为倒座房、第一进院、垂花门 、第二进院、正房或过厅、第三进院 、正房、第四进院、后罩房 。下面为其示意图:

自建房与四合院(4)——北京四合院的布置格局(篇2)

四进院落平面示意图

自建房与四合院(4)——北京四合院的布置格局(篇2)

四进院落俯视图

在实际的建造中 ,有些四进的院落并不像上述的布局这样规整,可以根据房屋主人的喜好而进行较大的布局调整,只是整体上看带保持四进院落的格局。

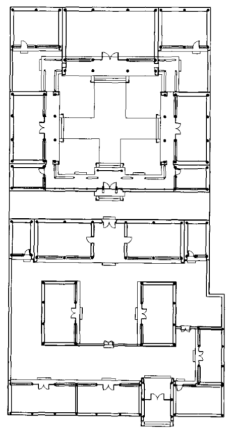
例如东城区南锣鼓巷帽儿胡同中的一座宅院 ,它的宅门与第一进院和垂花门,是同上述常规院落保持一致的。只是第二进院子里,它的三间客厅是独立布置于院中的 ,两侧没有耳房,而是东西对称布置的两列厢房 。客厅向北又是一座垂花门,由此进入第三进院子。第三进院子与常规的布局也是不太一样 ,它在主房两侧的耳房旁边都留有通向后院的过道。最北面经过一道屏门就是第四进院和后罩房了 。

自建房与四合院(4)——北京四合院的布置格局(篇2)

非常规布置的四进院落1

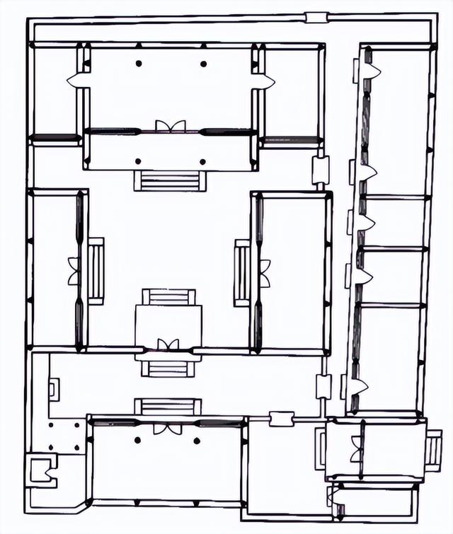
再例如另外一座四进院落,它的布置格局又是别具一格。它的第二进院与第一进院虽然留有屏门,但在西侧又是连通的。第二进院北侧正房五间加耳房共七间 ,中部明间是过厅 ,能往第三进院子 。第三进院子南北之间只有几米的间距,所有没有布置任何房间,纯粹只是条狭长的小院。然后再往北通过垂花门后 ,就进入到了第四进院子,第四进院子北面就是常规的三间主房加左右两侧各两间耳房布局,东西厢房 、主房和厢耳房由抄手游廊环形连通。

自建房与四合院(4)——北京四合院的布置格局(篇2)

非常规布置的四进院落2

由以上所举的三个例子可知 ,四进式的四合院,其具体的平面格局受地形和屋主的个人喜好等因素影响,可以有很多不同的布局方式 。

5、一主一次并列式院落 。这是一种在常规四合院左侧或者右侧又增加一排房屋和院子的院落组合 ,一般这种组合方式在因为宅基地较宽,但又不足以建筑并列两座宅院的情况下使用。

自建房与四合院(4)——北京四合院的布置格局(篇2)

一主一次并列式院落俯视图

自建房与四合院(4)——北京四合院的布置格局(篇2)

另外一种一主一次并列院落的平面图

以由上两张图可见,一主一次并列院落的出现 ,主要还是本着充分利用土地的原则,而对标准四合院进行的扩展建造。

6、两组或多组并列式院落 。顾名思义,这是由两座或多座大小相等或相近的院落并列布置而形成的 ,一般各个院落之间都有屏门连接 ,合得其各自独立又可相互沟通。这种院落的组合体规模庞大,一般都是豪门大户的宅子。

自建房与四合院(4)——北京四合院的布置格局(篇2)

两组并列式院落平面示意图

当然,在较小的宅基地上 ,如果需要给兄弟二人分开建房的话,也可以用到这种并列式的院落建造方法,如下图所示:

自建房与四合院(4)——北京四合院的布置格局(篇2)

小块宅基地的并列式院落

以现在的眼光来看 ,这种院落的组合方式,是不是跟我们所谓的联排别墅有异曲同工之妙?

7 、带花园的合院住宅 。在北京的很多大、中型四合院中,有很多是带花园或游园的。特别是在清朝 ,受皇家建园成风的影响,很多达官贵族和富商巨贾们也都兴建起了自己的私家园林。皇家宅院与园林占地更大,园中不乏水榭亭楼、奇花名木 。但达官贵族和富商巨贾们却不敢依样画葫芦 ,他们的宅边花园一般规模较小,但却讲究布局的小而精。

自建房与四合院(4)——北京四合院的布置格局(篇2)

王府的宅园

至此,通过两篇文章 ,我们已经介绍完了七种北京四合院的基本格局。总结来说 ,一 、二进式院落是北京四合院的基本组成单元,它是广大平民百姓的选择 。而三进以上的宅院,一般都是有些身份和地位的大户人家所居。

站在当今的时代来看 ,一些商品房(尤其是仿古建筑)的小区布局和户型布置,都或多或少的受到了古代住宅建造方式和布局的影响。比如:主房与厢房相对的位置 、宅门的安放方位、各房间的高低关系、台阶踏步的阶数要求等等,都是对古代建筑营造技术的一种传承 。

后续的文章我们开始探讨北京四合院的空间关系 ,敬请关注 。

本文来自作者[山菱]投稿,不代表视听号立场,如若转载,请注明出处:https://m.stddy.com/keji/202512-64341.html

(2)

文章推荐

  • 英国疫情会持续多久(英国疫情持续到明年)

    疫情啥时候能彻底结束1、据美国专家预测,新冠疫情有望在2023年得到彻底控制,最迟不会晚于2024年。英国专家认为,疫情可能会在2022年或2023年结束,但若情况不佳,结束时间可能延至2026年。我国黄建平院士领导的团队预测,新冠疫情的确切结束时间尚不

    2025年04月18日
    248
  • 我来教大家“普通牌出老千设备仪器(助赢神器通用版)

    超炫软件神器哦!微乐山东麻将助攻神器(如何提高胡牌率)“我们专注于各类软件定制开发,已成功研发高效实用的软件系统。软件定制开发服务用获取专业解决方案。”微乐山东麻将助攻神器是一款可以让一直输的玩家,快速成为一个“必胜”的ai辅助神器,有需要的用

    2025年09月27日
    60
  • 公务员上班时间接娃算违规违纪吗?明确规定来了

    “孩子四点放学,自己五点半下班,中间的一个半小时孩子没人接咋办?提前离岗算违规吗?”这一问题已成为许多双职工公务员家庭的共同困扰。随着机关作风整治常态化,让公务员群体既犯了愁,也有了后顾之忧。当工作纪律遇上接娃急需,这碗“公家饭”该怎么端稳?端稳“公家饭”,先守“硬杠杠”根据《中华人民共和国公务员法

    2025年10月19日
    59
  • 巩义最正宗的四大美食

    巩义最正宗的四大美食老乡见老乡,必须整二两;吃着家乡菜,感情似爹娘。在异乡漂泊、打拼的人,时间越长越是思念家乡,除了怀念家乡的土路、草瓦房以及小的时候和稀泥的玩伴,更令人难忘的就是家乡独特美食的味道。虽然你身在异地,但是这种味道时刻勾引着你的心,引诱着你的胃。如果你在外地能够吃到最最正宗的家乡菜,相

    2025年11月30日
    21
  • 中央网信办:永久封禁!

    近期,中央网信办深入推进“清朗·整治网络直播打赏乱象”专项行动,针对低俗团播引诱打赏问题,督促网站平台持续加强团播内容管理,从严处置一批顶风作案的违规账号。现将部分典型案例通报如下:低俗内容吸引打赏。团播账号“HN-三世烟火”“Top-长安城”“YC-热舞青春6.0”等,在直播过程中穿着暴露,频繁做

    2025年12月02日
    19
  • 42岁刘翔现状:与妻子感情稳定,长期在国外旅游,靠终身合同吸金

    文|碧落千山编辑|可口枫达2004年雅典奥林匹克体育场,男子110米栏决赛即将开始。21岁的刘翔已经站定,准备冲向那个历史性的时刻。12秒91过后,整个场馆直接陷入疯狂。“刘翔赢了!刘翔赢了!”看台上的解说员激动得声音嘶哑。这个来自上海的年轻人,成为第一位在直道项目上获得奥运金牌的亚洲男性运动员。

    2025年12月07日
    25
  • 2025延迟退休落地!1970后想退?条件详解

    2025年1月1日,渐进式延迟法定退休年龄开始执行,1970年以后出生的人进入了一个明确的过渡期。很多人马上问:延迟都落地了,还能提前退休吗?答案是可以,但路径被划成两条,条件也更细化。先说结论层面:提前退路子没被一刀切全部关掉,有两条通道——“法定特殊情形”那一类,面向确有特殊职业风险或完全丧失劳

    2025年12月10日
    9
  • 跑者必知!跑步“黄金法则”:一周几次?每次几公里?

    五月最后一个周末,北京南锣鼓巷一位25岁互联网产品经理夜跑猝死,家属质疑“每天十公里打卡”害命。跑步别瞎卷,身体不是打卡机。跑量上瘾比抽烟上瘾还隐蔽。朋友圈晒公里数,跑团排行榜,手环疯狂震动“恭喜破纪录”,把休息当偷懒。结果膝盖报废,心率飘到190还硬撑,美名其曰“自律”。自律个鬼,这叫自虐。每

    2025年12月11日
    9
  • 中东战火失控,伊朗突然向中国发出3点请求!土耳其连夜增产导弹

    2025年6月,中东局势彻底炸锅,伊朗和以色列的冲突像脱缰野马,一发不可收拾。导弹满天飞,无人机嗡嗡作响,战火烧得人心惶惶。就在这节骨眼上,伊朗突然向中国抛出3点请求,到底是啥打算,让人猜不透。而土耳其那边也不闲着,连夜加班加点增产导弹,这一把火还能烧多大?中东这地方,从古到今就没消停过,伊朗和以色

    2025年06月23日
    120
  • 【31省区市新增本土30例分布6省市,31省份新增本土15例】

    31省新增本土26例分布7省市什么叫〖壹〗、省新增本土26例分布7省市指的是在中国31个省级行政区中,有7个省市新增了总共26例本土确诊病例。具体来说:含义:这一数据表明,在过去的某一天或某一段时间里,中国的31个省级行政区中,有7个省市报告了新增的本土确诊病例,总计数为26例。来源:这些新增病例

    2025年07月06日
    121

发表回复

本站作者后才能评论

评论列表(4条)

  • 山菱
    山菱 2025年12月12日

    我是视听号的签约作者“山菱”!

  • 山菱
    山菱 2025年12月12日

    希望本篇文章《自建房与四合院(4)——北京四合院的布置格局(篇2)》能对你有所帮助!

  • 山菱
    山菱 2025年12月12日

    本站[视听号]内容主要涵盖:国足,欧洲杯,世界杯,篮球,欧冠,亚冠,英超,足球,综合体育

  • 山菱
    山菱 2025年12月12日

    本文概览:上一篇文章咱们分享了“一进院落、二进院落、三进院落”这三种常见的四合院的基本格局,今天我们就继续介绍剩下的几种基本格局。4、四进院落。四进院落是三进院落沿纵深方向的进一步扩展,...

    联系我们

    邮件:视听号@sina.com

    工作时间:周一至周五,9:30-18:30,节假日休息

    关注我们